Home    Contact    
• DOOR
  Steel Roll-Up
     Steel
     Weatherized
     Insulated
     26 Guage Light Duty
  Aluminum Roll-Up
     Aluminum
     Insulated
     Grille
     Panel
     Lexan (High Protection)
     Lexan Panel
     Combination
     High Speed Door
  Counter Roll-Up
     Steel
     Aluminum
     Stainless Steel
  High Speed Roll-Up
     Aluminum
     Grille
     Steel
  Fire Rated Roll-Up
  Folding Closure
  Overhead Sectional
  Strip Door
  Swing Door
• OPERATOR
  Motor Operation
  Accessories
ALUMINUM GRILLE ROLL-UP

Aluminum Grille Doors are ideal for a diversity of commercial and residential application requirements ranging from shopping-mall security to garage entrances. Aluminum Grille Doors can be motor, chain hoist, crank or manually operated. To achieve highest product quality Aluminum Grille Doors are manufactured with solid aluminum bars, rather than hollow tubes, running the full width of the opening. These bars are then connected with vertical aluminum links, with double-single-double configuration, kept in place with aluminum spacers resulting in a stronger more reliable door.





ARCHITECTURAL SPECIFICATIONS

• GENERAL SPECIFICATIONS
Work Included
Aluminum Grille Doors will be designated as Model AG__ as manufactured by Best Roll-Up Door, Inc.
- Mounting: The door can be face mounted or mounted between jambs of a prepared opening.
Related Work
Opening preparations, miscellaneous or structural steel, field painting or finish, access panels, electrical wires, wiring, switch connection, conduit will be handled by the appropriate trades.
• PRODUCT SPECIFICATIONS
Curtain
- Curtain: Solid aluminum bars, extruded in continuous length, of 5/16" diameter, placed horizontally with a center to center spacing of 1-1/2". Aluminum spacer tubes shall be provided at least every 12" vertically. Double-single-double configured vertical aluminum links shall be provided every 9" horizontally.
- Endlocks: To accomplish slat alignment and serve as a wearing surface endlocks are fitted to each end of every bar.
Bottom Track
Curtain is reinforced with an extruded 6063-T6 aluminum tube that can be further reinforced for wider openings.
Guide and Wall Angle Assembly
- Guides/Wall Angles: Extruded aluminum channels at both sides shall serve as guides. Wall angles shall be either aluminum or steel with minimum thickness of 1/8". Whenever required, structural steel tubes can be used in lieu of wall angles.
- Depth of Guide: To be of appropriate size to allow curtain penetration and to restrict horizontal curtain movement.
Bracket Plates
- Bracket Plates: To support the curtain and the counterbalance, the bracket plates shall be provided with minimum thickness of 1/4".
- Drive End Bracket Plate: The bracket plate on the drive end is to be fitted with a sealed ball bearing.
Spring Counterbalance
- Counterbalance: Housed in a steel pipe, maximum deflection of 0.03" per foot of door width shall be achieved by having the appropriate diameter and wall thickness.
- Springs: Helical torsion with a 25% overload factor for ease of operation and are greased packed mounted on a cold rolled steel inner shaft.
- Spring Tension: Can be adjusted form outside of end bracket plate.
- Ball Bearing: Sealed in order to minimize wear of pipe shaft rotation around inner shaft.
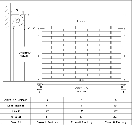
HOODS
- Hoods: To completely enclose curtain and counterbalance, hoods shall be provided from #24 U.S. Gauge galvanized steel.
- Reinforcing: Can be reinforced laterally to prevent sag.
- Intermediate Hood Supports: Provided where door width exceeds 16'.
OPERATION
Can be manual push-up, chain hoist, awning crank, or power operated.
LOCKING
- Integral Gearing: Power operator can provide additional locking for door.
- Hand Chain Lock: Locking bracket can be provided.
- Cylinder Lock: System is installed in bottom track and can be key or thumb knob operated.
FINISH
Aluminum surfaces shall have mill finish or clear anodized finish.

• EXECUTION
OPTIONS
- Curtain Patterns: Vertical links can be spaced 2” (minimum) apart to 9”(maximum) apart from brick pattern and straight pattern. 9” spacing is standard.
- Bottom Track: Bottom track can be sloped to match the contour on finished floor or can be notched to match obstruction on finished floor.
- Sensor Edge: An electronic sensor edge can be added to power operated doors to reverse the door travel upon encountering an obstruction for safety.
- High Cycle Springs: Can be obtained for motorized doors that require 50,000 to 100,000 cycles. Very high cycles in excess of 100,000 are also available.
- Locking: Thumb turn/key cylinder locks and multi-cylinder locks are available.
- Aluminum Surfaces: Aluminum surfaces can have mill finish or clear anodized finish.
- Pass Door: Hollow metal pedestrian door within rolling door can be obtained in a 3’ x 7’ or 3’ x 6’ 8” size. Hinged to rolling door guide the hollow metal door frame will swing clear of opening when desired. Hardware includes heavy duty hinges and handicap-lever lock set.
- Emergency Egress Release Device: Can be supplied to motor operated doors for emergency exit. The device does not require electrical power to operate the door making it indispensable in case of a power outage and a fire.















13202 ARCTIC CIRCLE SANTA FE SPRINGS, CA 90670  •  TEL. 562.802.2233  •  TOLL FREE. 800.400.2565  •  BESTROLLUP@GMAIL.COM
COPYRIGHT © 2014  BESTROLLUP.COM  All RIGHTS RESERVED